Byt č. 514 3+kk mezonet o výměře 140,55 m2 v pátém nadzemním podlaží

Informace o bytě

Typ 3+kk mezonet
Orientace jih
Zařízený ano náhled zde
Vratná kauce 36 050
Stav volný

Měsíční platby

Služba Bez DPH DPH Včetně DPH Jednotka
Nájem 36 050 3 605 39 655 Kč/byt
Elektřina 8 304 1 744 10 048 Kč/byt
Topení * 14 138 2 969 17 107 Kč/byt
Voda 2 000 200 2 200 Kč/osoba
Celkem bez topení * 46 354 5 549 51 903
Celkem včetně topení * 60 492 8 518 69 010

* Topení se platí jen v zimní sezóně v měsících říjen - květen.
Možnost odpočtu DPH pro plátce daně.
Běžná spotřeba vody a elektřiny je placena paušálně ve výši uvedené v tabulce. Nadměrečná spotřeba může být doúčtována.

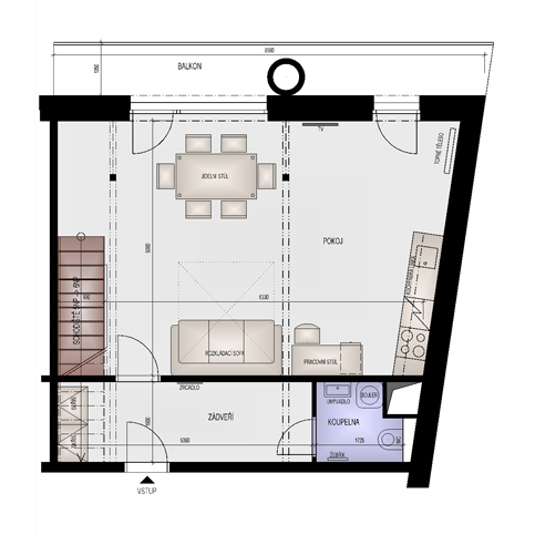
Rozměry bytu

balkon 6,39
pokoj s kuchyňským koutem 36,49
WC 2,53
zádveří 8,01
chodba 14,27
koupelna 9,43
1. ložnice 16,88
2. ložnice 11,50
terasa 12,05
půdní komora 23,00
celkem 140,55

Podrobný popis bytu

Pronájem zařízeného mezonetového bytu 3+kk s terasou ve čtvrtém a pátém patře o celkové výměře 140,55 m2. Zádveří 8,01 m2, WC 2,53 m2, pokoj s kuchyňským koutem 36,49 m2, balkon 6,39 m2, chodba 14,27 m2, 1. ložnice 16,88 m2, 2. ložnice 11,50 m2, koupelna 9,43 m2, terasa 12,05 m2, půdní komora 23 m2. Okna, terasa i balkon jsou situovány na jižní stranu do dvorní části objektu. Vybavení bytu tvoří kuchyňský kout s kuchyňskou linkou v barvě Wenge a pracovní deskou Egger v barvě Jura černá se sklokeramickou varnou deskou Indesit VRM 640 MC se čtyřmi varnými zónami, komínový odsavač Elica Missy 60/IX, vestavěná mikrovlná trouba Baumatic BMC253SS s grilem a horkovzdušnou troubou, podstavná lednice indesit TFAA 10. Jídelní stůl, židle. Pracovní stůl a židle. V obývacím pokoji je luxusní sofa, které se dá rozložit na plnohodnotné pohodlné dvoulůžko. V ložnici je luxusní postel King Koil s možností uspořádání jako oddělené postele nebo manželská postel. V druhé ložnicí je samostatná komfortní postel 90 x 200 cm barva Wenge. V předsíni je vestavěná skříň. Koupelna s vanou 160 cm, umyvadlem a WC, koupelnová skříňka LeBon, barva Wenge. Topení ústřední s radiátory, ohřev teplé vody elektrickým inteligentním ohřívačem OKHE SMART se zásobníkem teplé vody pro 125 l. Bytová okna s izolačními trojskly.
Vzorová ukázka standardního zařízení bytu.

Kontaktujte nás

Máte-li zájem o podrobnější informace o bytě, či máte zájem byt rezervovat kontaktujte nás prostřednictvím tohoto formuláře. Nejpozději následující pracovní den se Vám ozveme.

Jméno a příjmení potřebujeme pro informaci, komu vlastně odpovídáme. Email potřebujeme znát, abychom měli kam odpovědět, někdy je jednodušší informace probrat telefonicky, proto prosím ideálně vyplňte i telefonní kontakt.

Půdorys bytu

Umístění bytu

Průkaz energetické náročnosti budovy

Průkaz energetické náročnosti budovy - náhled