Byt č. 215 2+kk o výměře 45,52 m2 ve druhém nadzemním podlaží

Informace o bytě

Typ 2+kk
Orientace jih
Zařízený ano náhled zde
Vratná kauce 21 000
Stav volný od 2.7.2026

Měsíční platby

Služba Bez DPH DPH Včetně DPH Jednotka
Nájem 21 000 2 100 23 100 Kč/byt
Elektřina 2 990 628 3 618 Kč/byt
Topení * 5 090 1 069 6 159 Kč/byt
Voda 1 600 160 1 760 Kč/osoba
Celkem bez topení * 25 590 2 888 28 478
Celkem včetně topení * 30 680 3 957 34 637

* Topení se platí jen v zimní sezóně v měsících říjen - květen.
Možnost odpočtu DPH pro plátce daně.
Běžná spotřeba vody a elektřiny je placena paušálně ve výši uvedené v tabulce. Nadměrečná spotřeba může být doúčtována.

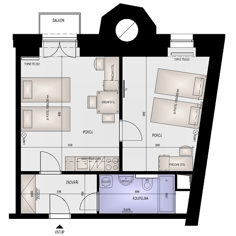
Rozměry bytu

ložnice 15,10
zádveří 4,95
koupelna 4,94
pokoj s kuchyňským koutem 18,98
balkon 1,55
celkem 45,52

Podrobný popis bytu

Pronájem zařízeného bytu 2+kk v prvním patře o celkové výměře 45,52 m2. Zádveří 4,95 m2, koupelna 4,94 m2, pokoj s kuchyňským koutem 18,98 m2, ložnice 15,10 m2, balkon 1,55 m2. Okna jsou situovány na jižní stranu do dvorní části objektu. Vybavení bytu tvoří kuchyňský kout s kuchyňskou linkou v barvě Wenge a pracovní deskou Egger v barvě Jura černá se sklokeramickou varnou deskou Indesit VRM 640 MC se čtyřmi varnými zónami, komínový odsavač Elica Missy 60/IX, vestavěná mikrovlná trouba Baumatic BMC253SS s grilem a horkovzdušnou troubou, podstavná lednice indesit TFAA 10. Jídelní stůl + 2 židle. Pracovní stůl a židle, čtyři oddělené postele 90 x 200 cm barva Wenge. V předsíni je vestavěná skříň. Koupelna s vanou 150 cm, umyvadlem a WC, koupelnová skříňka LeBon, barva Wenge. Topení ústřední s radiátory, ohřev teplé vody elektrickým inteligentním ohřívačem OKHE SMART se zásobníkem teplé vody pro 125 l. Bytová okna s izolačními trojskly. Internet je v ceně nájmu.
Vzorová ukázka standardního zařízení bytu.

Kontaktujte nás

Máte-li zájem o podrobnější informace o bytě, či máte zájem byt rezervovat kontaktujte nás prostřednictvím tohoto formuláře. Nejpozději následující pracovní den se Vám ozveme.

Jméno a příjmení potřebujeme pro informaci, komu vlastně odpovídáme. Email potřebujeme znát, abychom měli kam odpovědět, někdy je jednodušší informace probrat telefonicky, proto prosím ideálně vyplňte i telefonní kontakt.

Ukázka bytu


Půdorys bytu

Umístění bytu

Průkaz energetické náročnosti budovy

Průkaz energetické náročnosti budovy - náhled